Bạn đang ấp ủ về một ngôi nhà mơ ước – nơi mỗi góc nhỏ đều ngập tràn ánh sáng, nơi cả gia đình quây quần ấm cúng, và mọi sinh hoạt đều diễn ra thuận tiện, dễ dàng. Nhưng bạn có biết, để biến những ý tưởng đẹp đẽ đó thành hiện thực, tất cả phải bắt đầu từ một bản vẽ mặt bằng công năng?
Rất nhiều gia chủ vì quá nôn nóng mà bỏ qua hoặc xem nhẹ giai đoạn thiết kế mặt bằng công năng, để rồi phải đối mặt với những bất tiện “khó ở” trong chính ngôi nhà của mình: lối đi chật hẹp, phòng ốc thiếu sáng, không gian sinh hoạt chung bất hợp lý, hay thậm chí là phải đập đi xây lại vô cùng tốn kém.
Bài viết này sẽ là kim chỉ nam giúp bạn hiểu rõ từ A-Z về mặt bằng công năng – bản vẽ quan trọng bậc nhất quyết định đến 90% sự thành bại của một công trình. Hãy cùng Qi Concept khám phá tại sao nó lại là “xương sống” của mọi ngôi nhà và làm thế nào để kiến tạo một không gian sống hoàn hảo cho riêng mình nhé!
Bản vẽ mặt bằng công năng là gì?
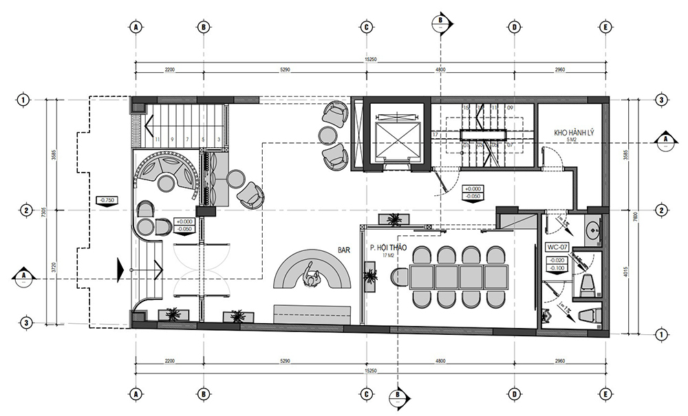
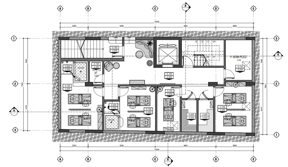
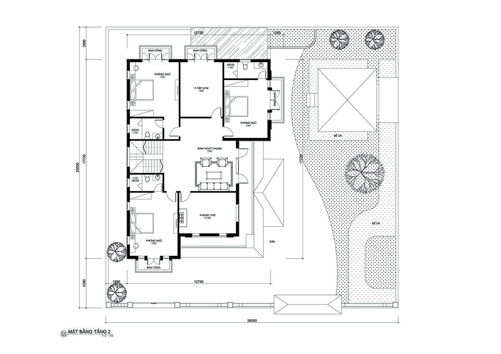
Hãy tưởng tượng bạn đang nhìn vào ngôi nhà của mình từ trên cao xuống, với phần mái đã được tạm thời gỡ bỏ. Hình ảnh bạn thấy chính là bản vẽ mặt bằng công năng. Đây là một bản vẽ kỹ thuật 2D thể hiện cách bố trí, sắp xếp các không gian chức năng bên trong ngôi nhà trên một mặt phẳng.
Nó không chỉ đơn thuần là việc vẽ ra các bức tường, mà là cả một nghệ thuật sắp đặt không gian sống một cách khoa học và hợp lý thông qua một mặt bằng công năng chi tiết.
Nó cho bạn biết những thông tin gì?
Một bản vẽ mặt bằng công năng hoàn chỉnh sẽ cung cấp cho bạn những thông tin cốt lõi:
- Phân chia không gian: Vị trí, diện tích, hình dạng của từng khu vực chức năng như phòng khách, phòng bếp, phòng ngủ, phòng vệ sinh, khu vực giặt phơi, ban công…
- Giao thông nội bộ: Sơ đồ di chuyển chính và phụ trong nhà, bao gồm lối đi, hành lang, cầu thang, đảm bảo sự thuận tiện và kết nối liền mạch giữa các không gian.
- Vị trí cửa: Vị trí và hướng mở của cửa chính, cửa sổ, cửa đi giữa các phòng, ảnh hưởng trực tiếp đến việc lấy sáng, thông gió và luồng di chuyển.
- Bố trí nội thất cơ bản: Gợi ý vị trí đặt để các món đồ nội thất chính yếu như sofa, bàn ăn, giường ngủ, tủ quần áo, bếp… để bạn hình dung được quy mô và cách thức sử dụng không gian.
- Thông số kỹ thuật: Kích thước chi tiết của từng phòng, từng bức tường, độ dày tường, và các ghi chú kỹ thuật quan trọng khác trên mặt bằng công năng.

Phân biệt mặt bằng công năng và bản vẽ kiến trúc/kết cấu
Nhiều người thường nhầm lẫn giữa các loại bản vẽ. Hãy phân biệt rõ ràng:
- Mặt bằng công năng: Tập trung vào “SỐNG” – cách bạn và gia đình sẽ sinh hoạt, di chuyển và tương tác bên trong không gian. Nó là bước đầu tiên, là ý tưởng nền tảng.

- Bản vẽ kiến trúc: Tập trung vào “THẨM MỸ” và hình khối bên ngoài – bao gồm mặt đứng, mặt cắt, chi tiết trang trí, vật liệu hoàn thiện… Nó hiện thực hóa mặt bằng công năng về mặt hình ảnh.

- Bản vẽ kết cấu: Tập trung vào “SỰ BỀN VỮNG” – liên quan đến móng, cột, dầm, sàn… đảm bảo khả năng chịu lực và sự an toàn cho toàn bộ công trình.

Nói một cách dễ hiểu, mặt bằng công năng là linh hồn, bản vẽ kiến trúc là diện mạo, còn bản vẽ kết cấu là bộ xương của ngôi nhà. Linh hồn phải có trước thì diện mạo và bộ xương mới có ý nghĩa.
Tại sao mặt bằng công năng là bản vẽ quan trọng khi làm nhà?
Nếu coi việc xây nhà là một bộ phim, thì kiến trúc sư chính là đạo diễn và bản vẽ mặt bằng công năng chính là kịch bản. Một kịch bản tốt sẽ tạo ra một bộ phim xuất sắc, và ngược lại.
Tối ưu hóa từng centimet vuông diện tích
Với giá đất đắt đỏ như hiện nay, mỗi mét vuông đều là “tấc vàng”. Một mặt bằng công năng thông minh sẽ giúp bạn tối ưu giá trị sử dụng của diện tích, loại bỏ các không gian chết, hành lang thừa, góc khuất không cần thiết. Không gian sẽ được bố trí hợp lý để tối đa hóa diện tích sử dụng, mang lại cảm giác rộng rãi và thoáng đãng, đặc biệt là với bản vẽ bố trí công năng nhà phố có diện tích chiều ngang hẹp.

Định hình không gian và gắn kết gia đình
Ngôi nhà không chỉ là nơi để ở, mà là nơi “sống”. Mặt bằng công năng sẽ quyết định “kịch bản sống” của gia đình bạn.
- Bạn muốn một không gian bếp mở kết nối với phòng khách để vừa nấu ăn vừa trò chuyện với mọi người?
- Bạn cần một góc làm việc yên tĩnh nhưng vẫn có thể quan sát con trẻ chơi đùa?
- Bạn mơ về một ban công lộng gió để thư giãn mỗi sáng?
Tất cả những mong muốn đó sẽ được kiến trúc sư cụ thể hóa qua cách bố trí các không gian, tạo ra sự tương tác, gắn kết giữa các thành viên. Một mặt bằng công năng chung cư được sắp xếp khéo léo hoàn toàn có thể mang lại trải nghiệm sống vượt trội.
Nền tảng vàng để tiết kiệm chi phí và thời gian thi công
Đây là lợi ích thiết thực nhất! Một bản vẽ mặt bằng công năng được tính toán kỹ lưỡng ngay từ đầu sẽ giúp bạn:
- Tránh sửa chữa, đập phá: Thay đổi một bức tường trên giấy chỉ tốn vài phút, nhưng đập đi xây lại một bức tường thực tế sẽ tiêu tốn của bạn rất nhiều tiền bạc, thời gian và công sức.
- Dự toán chính xác: Khi đã có layout rõ ràng, việc bóc tách khối lượng, dự toán chi phí vật tư, nhân công sẽ chính xác hơn rất nhiều, hạn chế tối đa chi phí phát sinh.
- Thi công suôn sẻ: Các đội thợ điện, nước, nội thất… sẽ có một “tấm bản đồ” chung là mặt bằng công năng để làm việc, tránh chồng chéo, sai sót, giúp đẩy nhanh tiến độ thi công.
Đảm bảo hài hòa về công thái học và phong thủy
- Công thái học (Ergonomics): Bản vẽ mặt bằng công năng sẽ tính toán tỉ lệ không gian, kích thước nội thất, khoảng cách di chuyển sao cho phù hợp nhất với vóc dáng và thói quen của người Việt. Điều này đảm bảo sự thoải mái, thuận tiện và an toàn trong quá trình sinh hoạt hàng ngày.
- Phong thủy: Đối với văn hóa Á Đông, yếu tố phong thủy rất được coi trọng. Kiến trúc sư sẽ dựa trên tuổi và mệnh của gia chủ để bố trí hướng cửa chính, hướng bếp, vị trí phòng ngủ… trong mặt bằng công năng sao cho hợp lý, giúp mang lại vượng khí, tài lộc và sức khỏe cho gia đình.

“Kim chỉ nam” cho tất cả các bản vẽ kỹ thuật sau này
Từ mặt bằng công năng đã được chốt, các kiến trúc sư và kỹ sư mới có thể triển khai các bản vẽ chi tiết khác như:
- Bản vẽ triển khai nội thất (bố trí ổ cắm, công tắc, đèn…).
- Bản vẽ hệ thống điện nước (M&E).
- Bản vẽ kết cấu, kiến trúc.
Nếu mặt bằng công năng sai, tất cả các bản vẽ sau đó đều sẽ sai, hệ lụy là không thể lường trước.
Hậu quả khôn lường khi xem nhẹ việc bố trí mặt bằng công năng
- Lãng phí diện tích: Xuất hiện nhiều góc chết, hành lang dài và hẹp.
- Bất tiện trong sinh hoạt: Di chuyển phải đi vòng vèo, thiếu ánh sáng tự nhiên, không gian ngột ngạt, bí bách.
- Thiếu sự kết nối: Các không gian chức năng bị cô lập, các thành viên trong gia đình ít có cơ hội tương tác.
- Phát sinh chi phí lớn: Phải đập phá, sửa chữa, cải tạo sau khi đã vào ở, gây tốn kém và phiền toái.
- Ảnh hưởng sức khỏe và tinh thần: Một không gian sống với mặt bằng công năng bất hợp lý có thể gây ra căng thẳng, mệt mỏi và ảnh hưởng lâu dài đến chất lượng cuộc sống.

Qi Concept giúp bạn kiến tạo mặt bằng công năng hoàn hảo như thế nào?
Với hơn 7 năm kinh nghiệm trong lĩnh vực thiết kế và thi công nội thất trọn gói, Qi Concept hiểu rằng một mặt bằng công năng hoàn hảo là sự kết hợp giữa khoa học, nghệ thuật và sự thấu hiểu sâu sắc khách hàng. Quy trình tư vấn bố trí mặt bằng công năng của chúng tôi đảm bảo tạo ra một không gian sống “đo ni đóng giày” cho riêng bạn:
- Lắng nghe & Thấu hiểu: Chúng tôi sẽ dành thời gian để trò chuyện, tìm hiểu về số lượng thành viên, thói quen sinh hoạt, sở thích, nghề nghiệp và cả những mong muốn “thầm kín” của gia đình bạn.
- Phân tích & Tư vấn chuyên sâu: Dựa trên thông tin thu thập và hiện trạng, các kiến trúc sư dày dạn kinh nghiệm của Qi Concept sẽ phân tích ưu, nhược điểm và đưa ra các phương án bố trí tối ưu nhất về công năng, thẩm mỹ, phong thủy và ngân sách.
- Thiết kế 2D & 3D trực quan: Quá trình thiết kế mặt bằng công năng không chỉ dừng lại ở bản vẽ 2D. Bạn sẽ được thấy trước không gian sống tương lai của mình qua những hình ảnh 3D chân thực, giúp bạn dễ dàng hình dung và đưa ra quyết định chính xác nhất.
- Tinh chỉnh đến khi hoàn hảo: Qi Concept luôn đồng hành cùng bạn trong quá trình tinh chỉnh bản vẽ mặt bằng công năng cho đến khi bạn thực sự hài lòng và tự tin rằng đây chính là không gian sống mà mình hằng mơ ước.
Câu hỏi thường gặp (FAQs)
1. Tôi có thể tự thiết kế mặt bằng công năng được không? Bạn hoàn toàn có thể tự phác thảo ý tưởng ban đầu dựa trên mong muốn của mình. Tuy nhiên, để có một mặt bằng công năng tối ưu, khoa học và khả thi về mặt kỹ thuật, bạn rất nên tìm đến các kiến trúc sư chuyên nghiệp. Họ có kiến thức chuyên môn về tiêu chuẩn thiết kế, kết cấu, công thái học và kinh nghiệm thực tế để biến ý tưởng của bạn thành một giải pháp hoàn hảo, tránh được những sai lầm đáng tiếc.
2. Chi phí để thiết kế một bản vẽ mặt bằng công năng là bao nhiêu? Chi phí thiết kế phụ thuộc vào nhiều yếu tố như diện tích, độ phức tạp của công trình và yêu cầu cụ thể của gia chủ. Nhiều công ty thiết kế thi công trọn gói như Qi Concept thường có chính sách ưu đãi hoặc miễn phí chi phí thiết kế mặt bằng công năng khi khách hàng ký hợp đồng thi công. Liên hệ ngay Hotline 0906 955 699 để nhận tư vấn chi tiết hơn về dịch vụ.
3. Thời gian để hoàn thiện một bản vẽ mặt bằng công năng mất bao lâu? Thời gian thường dao động từ 3 đến 7 ngày làm việc, tùy thuộc vào quá trình trao đổi thông tin và tốc độ phản hồi, chốt phương án giữa bạn và kiến trúc sư. Giai đoạn này rất quan trọng, vì vậy bạn không nên vội vàng mà hãy dành thời gian cân nhắc kỹ lưỡng về mặt bằng công năng cuối cùng.
4. Tôi cần chuẩn bị những thông tin gì cho kiến trúc sư? Để quá trình tư vấn bố trí mặt bằng công năng hiệu quả, bạn nên chuẩn bị:
- Thông tin về khu đất/căn hộ: Bản vẽ hiện trạng, sổ đỏ/sổ hồng (nếu có).
- Thông tin về gia đình: Số lượng thành viên (hiện tại và tương lai), độ tuổi, nghề nghiệp.
- Nhu cầu và thói quen sinh hoạt: Gia đình có hay nấu ăn không? Có thường xuyên có khách không? Cần bao nhiêu phòng ngủ, phòng vệ sinh? Có cần không gian làm việc, phòng thờ, kho… không?
- Phong cách thiết kế yêu thích: Hiện đại, tối giản, cổ điển, Indochine…? (Hãy sưu tầm một vài hình ảnh bạn thích).
- Ngân sách dự kiến: Đây là thông tin quan trọng để kiến trúc sư đưa ra giải pháp thiết kế và vật liệu phù hợp.
Bản vẽ mặt bằng công năng không chỉ là những đường nét trên giấy, nó là nền móng, là trái tim của ngôi nhà, quyết định trực tiếp đến chất lượng sống, niềm vui và hạnh phúc của cả gia đình bạn trong nhiều năm tới. Đầu tư thời gian và tâm huyết cho giai đoạn này chính là sự đầu tư thông minh và xứng đáng nhất.
Nếu bạn đang chuẩn bị xây dựng tổ ấm, đừng ngần ngại liên hệ với Qi Concept. Với đội ngũ kiến trúc sư tâm huyết và giàu kinh nghiệm, chúng tôi sẽ giúp bạn kiến tạo một mặt bằng công năng hoàn hảo, nơi mỗi ngày trôi qua đều là những trải nghiệm tuyệt vời.
——————–
- Hotline: 0906 955 699 (CSKH)
- Địa chỉ: 77 Hoa Lan, Phường Cầu Kiệu, TP. Hồ Chí Minh
- Facebook: Nội Thất Qi Concept
- Instagram: noithatqiconcept
- Youtube: Nội Thất Qi Concept
Kinh nghiệm: 10 năm
Với Qi Concept, chúng tôi tin rằng thiết kế nội thất là một nghệ thuật kết hợp giữa ý tưởng, thẩm mỹ và chức năng, với trọng tâm tập trung vào cách mà con người tương tác và liên kết với không gian sống của mình. Qi Concept luôn lắng nghe và hướng đến những không gian nội thất không chỉ đẹp mắt mà còn phải thật vừa vặn, phản ánh đúng cá tính và phong cách của gia chủ.