Dự án De La Sol là một dự án đang nóng lên từng ngày với giới bất động sản vì độ hot của nó mãi không thể hạ nhiệt. Đây là một dự án đẳng cấp đến từ nhà đầu tư hàng đầu Châu Á – Capitaland hoàn toàn phát triển. Bởi vậy, căn hộ của những cư dân ở đây không hề tầm thường. Vậy để biết chi tiết như nào, hãy cùng điểm qua những hình ảnh thiết kế thi công nội thất căn hộ De La Sol nhé!
1- Vì sao nên thuê căn hộ Delasol?
Những tiện ích nhận được khi thuê căn hộ De La Sol
De La Sol là dự án duy nhất tại Quận 4 được phát triển bởi 1 Chủ đầu tư Bất động sản quốc tế là CapitaLand. Đây là tập đoàn bất động sản lớn nhất Châu Á. Vậy nên độ uy tín và chất lượng của dự án này là không phải bàn cãi. Thiết kế đẳng cấp cũng đến từ đội ngũ quốc tế hàng đầu của Tập đoàn CapitaLand. Mọi tiêu chí tối đa hóa ánh sáng và thoáng gió tự nhiên luôn được đảm bảo ở từng căn hộ.

Dự án De La Sol đang trong quá trình thi công và hoàn thiện
Dự án còn sở hữu vị trí chiến lược “vàng” tiếp giáp các quận trung tâm khác: Q.1, Q.2, Q.5, Q.7. Được ưu ái sở hữu tầm nhìn sông Kênh Tẻ thoáng mát trong lành. Đây cũng là dự án duy nhất tại quận 4 được đầu tư hơn 50 tiện ích chuẩn resort phong cách Singapore. Nơi đây sở hữu nhiều tiện ích độc đáo như: jacuzzi trên không, rạp chiếu phim ngoài trời trên không, vườn tĩnh tâm, vườn thưởng trà, sân Hip Hop, nhà bạt nhún, khu vực dã ngoại…

Rạp chiếu phim ngoài trời trên không (phối cảnh)

Hồ bơi trên không chuyên dùng tổ chức các party pool (phối cảnh)
Dự án De La Sol đã mang về những giải thưởng gì?
- Best High End Condo Development: Dự án căn hộ cao cấp xuất sắc
- Best Condo Interior Design: Thiết kế nội thất căn hộ cao cấp xuất sắc
- Best High End Condo Landscape Architectural Design: Thiết kế kiến trúc cảnh quan căn hộ cao cấp xuất sắc
- Best Green Development: Dự án xanh xuất sắc
- Best High End Condo Architectural Design: Thiết kế kiến trúc chung cư cao cấp xuất sắc
2- Mặt bằng thiết kế dự án căn hộ De La Sol quận 4 ra sao?
Sự khác biệt của toàn bộ căn hộ De La Sol so với những căn hộ ở những dự án khác là sự tiện nghi vượt bật của nó cho cùng một diện tích. Các gian phòng được tính toán hết sức thông minh đến từ đội ngũ thiết kế quốc tế hàng đầu của Tập đoàn CapitaLand. Vậy nên mọi tiêu chí tối đa hóa ánh sáng và thoáng gió tự nhiên đều được đảm bảo tuyệt đối.

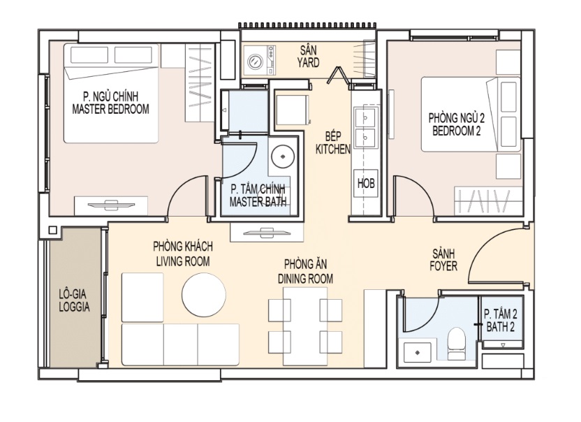
Mặt cắt căn hộ 2 phòng ngủ của dự án De La Sol Block C
Với căn hộ được quan tâm nhiều nhất là căn hộ 2 phòng ngủ 62.88m² sẽ được bố trí như mặt bằng bên dưới. Gồm: 2 phòng ngủ, 2 WC, 1 phòng ăn, 1 phòng khách, 1 lô gia và sân yard. Với bố trí như vậy, căn phòng có thể đáp ứng đủ tiện ích sống với những gia đình trẻ kinh tế siêu vững. Tiện ích xứng đáng với giá tiền bỏ ra.
3- Mẫu thiết kế căn hộ De La Sol đẹp, thời thượng
Phòng khách xa hoa, sang trọng
Bạn là một người đẳng cấp và cần một phòng khách đẳng cấp đúng nghĩa đen có thể thỏa mãn những chiến tích của bạn. Có lẽ Luxury Modern chính là phong cách dành cho bạn.
Khi bước vào phòng khách, hơi thở của bạn như hòa quyện với sự sang trọng, đầy từ tính nơi đây. Từng thanh gỗ, từng vách tường đều được chạm khắc kỳ công “danh xứng với thực” với sự “luxury”. Đến cả những chi tiết loang màu trên vách tường tivi đá cẩm thạch cũng được lựa chọn kỹ càng. Tất cả chỉ với một mong muốn duy nhất là mang lại sự hào nhoáng cho chủ nhân căn nhà.

Phòng khách De La Sol phong cách luxury đẳng cấp
Sự ăn ý giữa bàn trà đá cẩm thạch đen, xám kỳ lạ và bộ ghế sofa gam trung tính toát lên vẻ lạnh lẽo, “trưởng thành” nhưng đầy cuốn hút. Các bức tượng đương đại chạm khắc đá đen uốn lượn ma mị đặt ở những góc phòng trống. Nâng tầm không gian phòng khách bí ẩn, mê hoặc như một tuyệt tác nghệ thuật sống.

Không gian phòng khách cuốn hút với các chất liệu đá đan xen

Tổng quan phòng khách De La Sol hiện đại, sang trọng
Sự ấm cúng hiện diện trong không gian bếp cao cấp
Nối tiếp phòng khách là phòng bếp với không gian rộng mở, thoáng mát. Toàn bộ khu vực phòng bếp toát lên sự sang trọng, ấm cúng. Khi nhìn đến bộ bàn ghế ăn, bạn sẽ cảm nhận được điều đó. Bởi gam màu nâu cam ấm áp và chất liệu cao cấp đến từ chân ghế bọc nhung và tay vịn da.

Không gian bếp cao cấp, ấm cúng với gam màu nâu cam nóng chủ đạo
Phong cách này nhấn mạnh sự đẳng cấp, hào nhoáng vậy nên gian bếp I cũng được bày biện đắt đỏ không kém. Tối giản màu sắc nhất có thể ở gam trắng tinh khiết. Điều đó giúp tôn lên phần tường đá hoa cương chi tiết tổ ong bắt mắt, độc đáo. Mang đến tổng thể không gian bếp cao cấp nhưng vẫn ấm cúng, thanh lịch.
Không gian phòng ngủ master thanh lịch, đẳng cấp
Phòng ngủ master là sự hòa quyện đầy thanh lịch giữa kiến trúc hiện đại và vật liệu gỗ thiên nhiên. Mang đến tổng thể rất hài hòa. Những dải đèn led được trang trí kỳ công như đang nhảy múa trên những phím đàn. Không chỉ ở các vách tường, trần nhà mà còn ở các khe tủ. Tôn lên vẻ đẹp của từng vật dụng bằng ánh sáng không hề tầm thường của mình. Tạo nên một “bản hòa tấu ánh sáng sống động”.

Dải đèn led trong phòng ngủ master được trang trí kỳ công như đang nhảy múa
Sự tinh tế, lịch lãm của chiếc tủ quần áo đen huyền bí đậm chất Châu Âu lại khiến gian phòng thêm thanh lịch. Cửa kính được chọn để show-off toàn bộ bộ sưu tập quần áo xa xỉ của gia chủ. Toát lên được vẻ đẳng cấp, sang trọng xứng tầm cho gia chủ.

Ghi điểm nghệ thuật cho phòng ngủ với tranh tả thực khổ lớn kỳ công
Phòng ngủ biến tấu cá tính như một phòng triển lãm
Nếu phòng ngủ master cho bạn cảm giác trưởng thành và thanh lịch thì phòng ngủ phụ là sự phá cách đầy mê hoặc. Nó sẽ cuốn hút bạn ngay từ ánh nhìn đầu tiên. Bạn sẽ không thể rời mắt nổi sự kỳ vĩ, tráng lệ của vách đá ma mị đầu giường.
Những đường cong gồ ghề bất quy tắc của chúng có thể chạm đến sâu thẳm sự tưởng tượng của bạn. Kích thích trí tưởng tượng bay xa đến bề mặt của mặt trăng hay miền đất của hành tinh chết. Thực sự là một tác phẩm kỳ lạ và cá tính.

Vách đá ma mị đầu giường chiếm trọn spotlight phòng ngủ phụ
Sự phá cách còn đến từ bức tượng đá đen kỳ lạ cuối phòng. Sự thống khổ của nó ôm trọn “ánh sáng của gian phòng”. Bức tượng chính là spotlight đúng nghĩa đen với những “viên ngọc ánh sáng” trên tay.

Điểm nhấn khác của phòng ngủ đến từ tượng đá đen kỳ bí
4- Qi Concept nhận thiết kế và thi công căn hộ De La Sol
Vừa rồi, bạn đã ngắm nhìn những mẫu thiết kế thi công nội thất căn hộ De La Sol đẹp theo phong cách Luxury Modern. “Sang trọng và xa hoa” là những tính từ để diễn tả căn hộ De La Sol mang tính nghệ thuật như trên. Nếu bạn cảm thấy ưng ý với thiết kế sang chảnh trên hay mong muốn tham khảo những phong cách thiết kế khác phù hợp với thẩm mỹ của bạn. Hãy liên hệ ngay với Qi Concept theo những phương thức bên dưới nhé! Chúng tôi luôn sẵn sàng hỗ trợ bạn mọi vấn đề với đội ngũ KTS chuyên nghiệp tư vấn.

Qi Concept – Đội ngũ thiết kế thi công nội thất trọn gói uy tín tại TP. HCM
Hãy đến ngay bên Qi Concept để cùng xây nên “ngôi nhà trong mơ” của bạn. Qi Concept sẽ biến những suy nghĩ, tưởng tượng của bạn thành sự thật với đội ngũ KTS tài giỏi, có thâm niên cao tay trong nghề. Với hơn 6 năm kinh nghiệm trong ngành thiết kế nội thất và thực hiện qua hàng trăm dự án lớn nhỏ. Chúng tôi tự tin là một đối tác toàn diện, uy tín để khách hàng có thể trao trọn lòng tin của mình. Hãy liên hệ với chúng tôi ngay nhé!
Có thể bạn quan tâm:
- Thiết kế nội thất căn hộ Dual Key De La Sol
- Thiết kế nội thất căn hộ De La Sol Quận 4
- Mẫu thiết kế nội thất căn 2 phòng ngủ De La Sol Quận 4
——————–

- Hotline: 0906 955 699 (CSKH)
- Địa chỉ: 77 Hoa Lan, Phường Cầu Kiệu, TP. Hồ Chí Minh
- Facebook: Nội Thất Qi Concept
- Instagram: noithatqiconcept
- Youtube: Nội Thất Qi Concept








