Nhà phố kết hợp kinh doanh, hay còn gọi là shophouse đang là một xu hướng trong một vài năm trở lại đây. Trước đây nếu kinh doanh thì không ở, mà ở thì không kinh doanh. Hoặc nếu ở thì kết hợp tự doanh luôn, nhưng đa phần là bất tiện, không tiện nghi hiện đại. Hãy cùng khám phá với Qi Concept loại hình này nhé.
1- Định nghĩa nhà phố kết hợp kinh doanh
Nhà phố kết hợp kinh doanh (shophouse, townhouse, hay bizhouse) là loại hình nhà được thiết kế để đáp ứng tối ưu nhất cho 2 mục đích là: vừa ở vừa cho thuê. Tạo dòng tiền trên chính ngôi nhà mình ở. Dòng nhà ở này ưu là có giá trị tăng theo thời gian vì thường nằm ở mặt đường hay giao lộ đông người. Nhược là giá nhà khá cao, thường cao hơn hẳn do với phân khúc nhà ở không kinh doanh được.
Đây là dãy nhà phố kết hợp kinh doanh tiêu biểu. Mẫu nhà này được thiết kế 1 trệt 3 lầu.

2- Thiết kế nhà phố kết hợp kinh doanh cần đảm bảo yếu tố gì?
Vị trí xây dựng các loại nhà này tối quan trọng. Các nhà phố kinh doanh phải nằm ở những chỗ sầm uất, mặt đường lớn, tối thiểu phải 11m thu hút nhiều người qua lại. Đặc biệt phải đủ rộng để có thể để xe cộ để phục vụ khách hàng ra vô.
Dưới đây là khu đô thị được bố trí những dãy nhà phố kết hợp kinh doanh ở những trục đường lớn (như khoanh đỏ trong hình dưới đây).

Cần xem xét kỹ lưỡng trước khi đầu tư
Kinh doanh loại hình này cũng cần xem xét trước khi đầu tư. Thường các loại hình nhà phố kết hợp kinh doanh nằm trong khu đô thị hoặc các khu nghỉ dưỡng. Kinh doanh sẽ chủ yếu là về ngành nghề thực phẩm và đồ uống (F&B), siêu thị tiện lợi, các cửa hàng quần áo, cơ sở làm đẹp. Một số ít có thể tận dụng cho thuê làm phòng giao dịch ngân hàng hoặc các cơ sở trông trẻ.
Đặc biệt loại hình này còn có thể cho kinh doanh khách sạn, thường gọi là boutique hotel. Các chủ đầu tư thường ủy nhiệm cho các đơn vị vận hành tư nhân vào thực hiện và chi trả tiền thuê nhà.

Một Boutique hotel ở Phú Quốc đang kinh doanh
Đảm bảo kết cấu và số tầng
Kết cấu và số tầng của loại hình nhà này cũng là yếu tố cần chú ý. Thông thường tầng trệt và tầng lửng sẽ được bố trí cho việc kinh doanh. Các tầng trên phục vụ cho sinh hoạt gia đình. Về cơ bản, kết cấu nhà này thì phải đảm bảo có hố thang máy để thuận tiện cho việc phân chia không gian sinh hoạt. Đặc biệt những nhà này thường có số tầng cao (tối thiểu 4 tầng trở lên), do đó thang máy là bắt buộc.
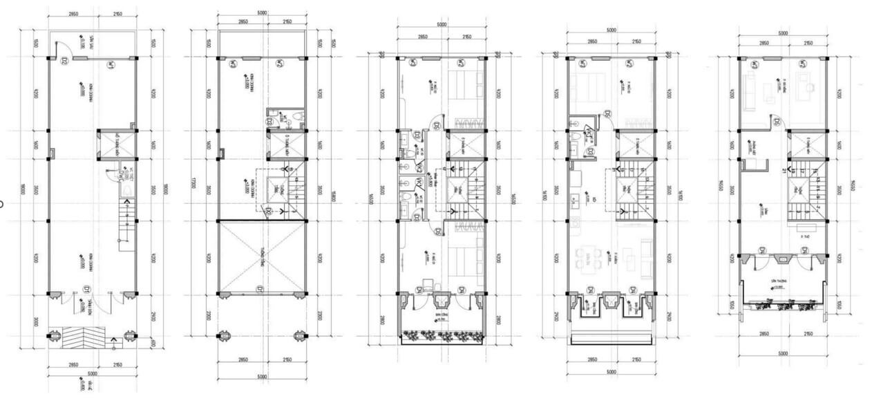
Dưới đây là mẫu shophouse 1 trệt 1 lửng và 3 lầu. Theo kết cấu này, trệt và lửng được thiết kế với cao độ trần cao hơn 5m để phục vụ kinh doanh.

Layout kiến trúc nhà phố kết hợp kinh doanh tiêu biểu.
Khi thiết kế lên thì có thể thấy không gian kinh doanh dưới trệt như sau:

Lối vào quán cafe bằng cửa chính
Mặt tiền sẽ có 2 lối đi vào, gồm một hệ cửa lớn đi vào quán cafe kinh doanh. Một hệ cửa nhỏ hơn sẽ kết nối lên tầng để lên nhà ở.

Lối thang lên khu nhà ở.
Quán cafe được bố trí dưới trệt rất đẹp, đảm bảo đủ công năng kinh doanh.

Không gian tầng lửng được tận dụng cho thuê văn phòng làm việc nhỏ, tạo nguồn thu đa dạng. Lối lên bằng thang máy với thẻ phân tầng.

Các vấn đề cần lưu ý khác
Đảm bảo an toàn và an ninh bằng hệ thang máy tách key giữa khu vực sinh hoạt và kinh doanh. Điều này đặc biệt cần thiết đối với các chủ nhà không tự kinh doanh mà cho thuê người ngoài làm.

Đảm bảo sự riêng tư cho gia chủ bằng việc bố trí các phòng ngủ tách biệt hẳn trên lầu, khỏi khu vực kinh doanh dưới trệt và lửng.

3- Tham khảo các mẫu thiết kế nhà phố kết hợp kinh doanh từ Qi Concept
Các mẫu thiết kế của Qi Concept rất đa dạng dựa trên nhu cầu của khách hàng. Đây là thiết kế tiệm bánh ở dưới trệt, được thiết kế theo tông màu xanh chủ đạo. Đá terrazzo trắng kèm gạch thẻ trắng làm nền, tạo sự sạch sẽ cho chủ tiệm.

Phòng ngủ ở gia chủ ở trên được thiết kế theo tông màu hoàn toàn khác. Tông màu trầm kết hợp những hệ vách nỉ nhung và inox mạ vàng rất sang trọng.

Phòng trẻ con được bố trí với hệ giường tầng kết hợp cầu trượt nhỏ. Tạo cảm giác cuốn hút cho trẻ. Các vách tường cũng được ốp nỉ để đảm bảo an toàn cho các bé.

Nhà WC được lấy ô thoáng để lấy khí và ánh sáng thiên nhiên. Mặc dù diện tích nhỏ nhưng cảm giác vừa đủ, tiện sử dụng.

Qi Concept hiểu rằng gia chủ đã phải bỏ số tiền không nhỏ. Để có được căn nhà vừa ở vừa kinh doanh. Do vậy, hãy gửi nhu cầu cho chúng tôi. Chúng tôi sẽ giúp bạn tối ưu hóa được diện tích kinh doanh. Kiến tạo nên một không gian đáng sống an toàn.
Có thể bạn quan tâm:
- Không Gian Thư Giãn Của Thiết Kế Nội Thất Spa U
- Tất Tần Tật Về Thiết Kế Văn Phòng Xanh Cho Doanh Nghiệp
- 60+ Mẫu Thiết Kế Nội Thất Shophouse Đẹp, Sang Trọng 2025
- Báo Giá Thi Công Nội Thất Shophouse Chuyên Nghiệp 2025
- Nhà ống cấp 4 có gác lửng 3 phòng ngủ: Mẫu đẹp, tối ưu chi phí
——————–

- Hotline: 0906 955 699 (CSKH)
- Địa chỉ: 77 Hoa Lan, Phường Cầu Kiệu, TP. Hồ Chí Minh
- Facebook: Nội Thất Qi Concept
- Instagram: noithatqiconcept
- Youtube: Nội Thất Qi Concept
Kinh nghiệm: 10 năm
Với Qi Concept, chúng tôi tin rằng thiết kế nội thất là một nghệ thuật kết hợp giữa ý tưởng, thẩm mỹ và chức năng, với trọng tâm tập trung vào cách mà con người tương tác và liên kết với không gian sống của mình. Qi Concept luôn lắng nghe và hướng đến những không gian nội thất không chỉ đẹp mắt mà còn phải thật vừa vặn, phản ánh đúng cá tính và phong cách của gia chủ.








