Cải tạo luôn là một việc cần làm để lột xác căn nhà của bạn để phù hợp với cuộc sống mới hơn. Dù bạn ở chung cư hay nhà phố, theo thời gian hoặc qua nhiều đời chủ, căn nhà sẽ bị thấm màu thời gian. Việc cải tạo lại nhà nếu không nắm rõ quy trình và chi phí cải tạo nhà ở. Sẽ gây rất nhiều phiền toái cho gia chủ. Trong bài viết này, chúng tôi sẽ tập trung để giải quyết vấn đề phiền toái này cho chủ nhà khi muốn cải tạo nhà.
1- Những lưu ý trong quy trình sửa chữa – cải tạo nhà
Quy trình 6 bước mà bạn cần phải tham khảo trước khi tiến hành sửa chữa và cải tạo nhà nhé. Thiếu bước nào bạn sẽ đều gặp những vấn đề nhất định đó.
| Các bước | Diễn giải |
| Bước 1: Khảo sát đánh giá hiện trạng và tổng hợp nhu cầu sửa chữa | ![]() Một căn nhà phố đang chuẩn bị cải tạo |
| Bước 2: Trình phương án cải tạo | ![]() Mặt bằng bố trí mới với chú thích rõ ràng. |
| Bước 3: Lên bản vẽ phương án cải tạo | ![]() Bản vẽ phương án bố trí nội thất sau cải tạo |
| Bước 4: Lên phối cảnh sau cải tạo | ![]() Phối cảnh phòng bếp và ăn
Phối cảnh phòng thờ |
| Bước 5: Thi công cải tạo | ![]() Thi công vách thạch cao
Thi công chỉnh sửa kết cấu (cửa đi)
Chỉnh sửa kết cấu hiện trạng theo thiết kế cải tạo mới
Thi công ốp lát |
| Bước 6: chuẩn bị chi phí cải tạo nhà ở | Bước này cũng rất quan trọng. Nếu việc chi phí hạn hẹp mà muốn cải tạo nhiều thì rất khó đáp ứng. Hơn nữa công việc cải tạo sẽ có nhiều phát sinh không lường trước được, do vậy bạn nên tham khảo đơn vị chuyên thiết kế cải tạo chuyên nghiệp để dự trù. |
Xem thêm: Bỏ Túi Kinh Nghiệm Cải Tạo Chung Cư Tiết Kiệm Chi Phí Từ A-Z
2- Yếu tố ảnh hưởng đến chi phí sửa chữa – cải tạo nhà
Có một số yếu tố vừa là trở ngại vừa là bài toán cho chủ nhà cần phải giải quyết khi sửa chữa cải tạo nhà đó là:
| Yếu tố ảnh hưởng | Mô tả |
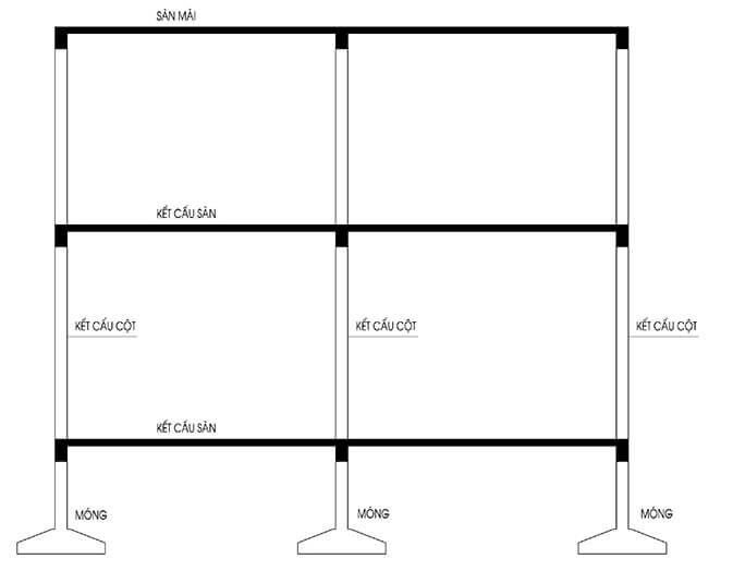
| Kết cấu nhà (dầm, cột) | ![]() Một số nhà xây từ khoảng 20-30 năm trước sẽ có một số cột và sàn khá yếu, chủ yếu xây tường chịu lực, do vậy việc cơi nới cải tạo cần đặc biệt chú trọng. |
| Chi phí cải tạo nhà ở | Cải tạo nhà sẽ dao động từ 90 triệu tới nhiều trăm triệu. Nếu bạn cải tạo một phòng ngủ trong nhà thì 90 triệu là con số có thể khả thi đối với các hạng mục: sơn mới, lắp đèn điện mới, làm nội thất mới. Tuy nhiên con số này không đủ nếu cải tạo nhiều phòng hơn. |
| Nhu cầu của gia chủ | Xem chi tiết trong mục số 4 – bảng các gói chi phí cải tạo nhà của QI concept. |
3- Các loại chi phí cải tạo nhà ở
Dưới đây là cấu phần các thành phần chi phí khi cải tạo và sửa chữa nhà:
Hạng mục chi phí | Tỷ trọng (dự tính – sẽ có thể biến đổi tùy hiện trạng) |
| Chi phí tháo dỡ, chỉnh sửa kết cấu nhà | 20% |
| Chi phí xây mới (tường, vách, trần) | 10% |
| Chi phí ốp lát mới (gạch/gỗ) | 10% |
| Chi phí sơn bả mới | 10% |
| Chi phí đèn điện | 10% |
| Chi phí thay thế thiết bị mới | 10% |
| Chi phí đồ gỗ mới | 30% |
| TỔNG | 100% |
4- Chi phí sửa chữa – cải tạo nhà trọn gói mới nhất 2026
Tại QI Concept, chúng tôi đưa ra các gói sửa chữa cải tạo theo các mức ngân sách khác nhau để các bạn tham khảo. Tuy nhiên, do hiện trạng mặt bằng khác nhau, các bạn cần liên hệ với chuyên gia cải tạo và KTS của bên chúng tôi để được tư vấn chính xác nhé.
Gói Sửa chữa Cải tạo | Gói Sửa chữa Cải tạo KINH TẾ | Gói Sửa chữa Cải tạo | |
| Giá | 95 -120tr | >120 – 180tr | >180-200tr |
| Chi tiết | 1. Cải tạo, chạy lại hệ thống điện/Thay thế 1 số đèn 2. Sơn điểm nhấn trang trí 3. Sửa chữa, thay thế một số đồ nội thất theo thiết kế | 1. Cải tạo sàn/làm trần mới (tùy lựa chọn và diện tích căn hộ) 2. Làm hệ thống điện trang trí theo thiết kế và thay 1 số đèn cơ bản 3. Sơn mới nhà theo thiết kế 4. Trang bị gói nội thất mới theo thiết kế | 1. Cải tạo trần theo thiết kế 2. Cải tạo sàn theo thiết kế 3. Sơn điểm nhấn trang trí và sơn nhà theo thiết kế 4. Hệ thống điện theo thiết kế mới 5. Trang bị đèn chiếu sáng và trang trí. 6. Trang bị lại nội thất mới theo thiết kế |
| Khuyến mãi | Miễn phí bố trí mặt bằng nội thất 2D Tư vấn về concept sửa chữa phù hợp | Miễn phí thiết kế 3D cho mục đích sửa chữa cải tạo | Miễn phí thiết kế 3D cho mục đích sửa chữa cải tạo |
Hiện tại QI concept đang đưa ra hàng loạt các ưu đãi chi phí thiết kế nội thất cải tạo trọn gói dành riêng cho các chủ nhân thành đạt. Các ưu đãi 5-10% này là để cho các bạn có thêm tự tin để có một căn nhà tuyệt vời được một tổ ấm mới thật đẹp. Hãy liên hệ ngay với Qi Concept qua thông tin bên dưới nhé !
Có thể bạn quan tâm:
- Tại Sao Bạn Cần Phải Cải Tạo Nhà Ở Của Mình?
- Cải Tạo Chung Cư 50m2: Biến Không Gian Cũ Thành Mới Đẹp Tiện Nghi
- Cải Tạo Nội Thất Opal Garden 2PN Chỉ Từ 9X Triệu Đồng
- Dịch Vụ Cải Tạo Nội Thất Văn Phòng Trọn Gói | Báo Giá 2026
——————–

- Hotline: 0906 955 699 (CSKH)
- Địa chỉ: 77 Hoa Lan, Phường Cầu Kiệu, TP. Hồ Chí Minh
- Facebook: Nội Thất Qi Concept
- Instagram: noithatqiconcept
- Youtube: Nội Thất Qi Concept
Kinh nghiệm: 10 năm
Với Qi Concept, chúng tôi tin rằng thiết kế nội thất là một nghệ thuật kết hợp giữa ý tưởng, thẩm mỹ và chức năng, với trọng tâm tập trung vào cách mà con người tương tác và liên kết với không gian sống của mình. Qi Concept luôn lắng nghe và hướng đến những không gian nội thất không chỉ đẹp mắt mà còn phải thật vừa vặn, phản ánh đúng cá tính và phong cách của gia chủ.


















